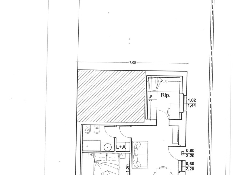
Appartamento in classe energetica A 4, con ingresso indipendente al piano terra di 48 mq composto da ingresso con cucina a vista , camera matrimoniale, cameretta /ripostiglio bagno. corte condominiale per bici e moto .
>>Dettaglio Immobile
Appartamento con ingresso indipendente
MC3-46144
Civitanova Marche - Civitanova Marche- Appartamento
- Vendita
- 48 m2
- 2 Locali
- 1 Bagni
- APE:

Appartamento in classe energetica A 4, con ingresso indipendente al piano terra di 48 mq composto da ingresso con cucina a vista , camera matrimoniale, cameretta /ripostiglio bagno. corte condominiale per bici e moto .
Maggiori Informazioni
Richiedi informazioni
Compila il form ed inviaci una richiesta su questo immobile.






























