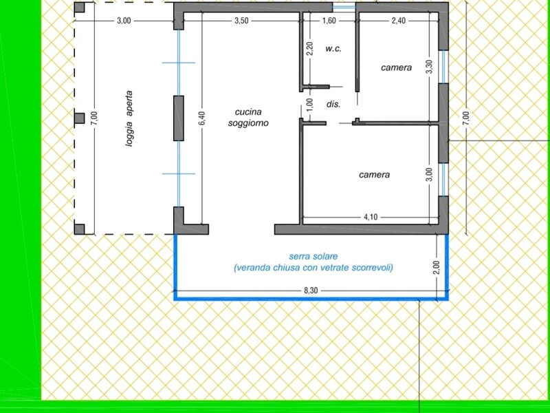
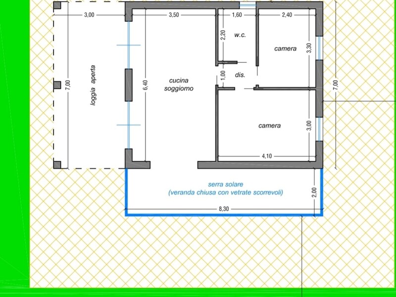
Occasione in un Oasi di pace! Rimessa di 60/70 circa con Progetto ampliamento P.Casa a 80/90 già approvato, su Terreno intorno di Mq.10000 Tutto recintato con possibilità di inserire una Piscina come da Progetto allegato. Info Martina Tel.379/2790714
>>Dettaglio Immobile
Occasione in un Oasi di pace! Rimessa di 70Mq con Terreno Mq.10000 con progetto già approvato.
Mc5-46153
Montegranaro - Montegranaro- Casa Indipendente
- Vendita
- 3570 m2
- - Locali
- - Bagni
- Classe energetica: ND
Occasione in un Oasi di pace! Rimessa di 60/70 circa con Progetto ampliamento P.Casa a 80/90 già approvato, su Terreno intorno di Mq.10000 Tutto recintato con possibilità di inserire una Piscina come da Progetto allegato. Info Martina Tel.379/2790714
Maggiori Informazioni
Richiedi informazioni
Compila il form ed inviaci una richiesta su questo immobile.











